Produktdatabase
Vinduer & terrassedøre
VELFAC 200 ENERGY
VELFAC Ribo træ/alu
VELFAC Ribo træ
VELFAC Classic træ/alu
VELFAC Classic træ
VELFAC Edge
VELFAC In
VELFAC Brandelement
Facadedøre
VELFAC Aluminium door
VELFAC Ribo træ/alu-døre
VELFAC Ribo trædøre
VELFAC Classic træ/alu-døre
VELFAC Classic trædøre
VELFAC branddøre
Download
System-snittegninger
BIM objekter
Indbygningstegninger
Montering og justering
Drift og vedligehold
Brugervejledninger
Ydeevnedeklarationer (DoP)
DGNB-dokumentation
Produktspecifikke EPD'er
Udbudsbeskrivelser
Info-center
Login (For medarbejdere)
Produkt database
Gå til VELFAC.dk
VELFAC Produktdatabase
Vinduer & terrassedøre
VELFAC 200 ENERGY
Tegninger
Tegninger
Tegninger
Tegninger
Her ses forskellige metoder til indbygning af VELFAC 200 ENERGY elementer.
Snittegninger downloades som DWG- og PDF-filer.
Alle tegninger kan frit bruges til projektering med VELFAC vinduer og døre.
Vis alle
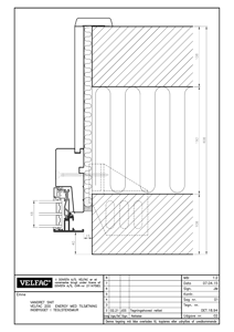
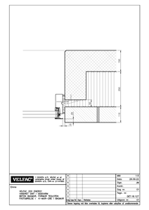
Indbygning i teglfacader
Montering i sandwichelement med teglfacade (vindue)
Download
pdf
dwg
zip
Se detaljer
Montering med vindfast montagebeslag
Download
pdf
dwg
zip
Se detaljer
Montering i sandwichelement med teglfacade (terrassedør)
Download
pdf
dwg
zip
Se detaljer
Indbygning i teglstensmur med indvendig tilsætning
Download
pdf
dwg
zip
Se detaljer
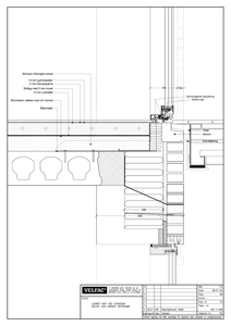
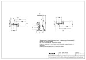
VELFAC 200 ENERGY anvendt til renovering aluafdækning af gammel fugematriale tilsætning for bedre termiske egenskaber
Download
pdf
dwg
zip
Se detaljer
Indbygning i teglstensmur med indvendig tilsætning
Download
pdf
dwg
zip
Se detaljer
Montering med vindfast montagebeslag
Download
pdf
dwg
zip
Se detaljer
Indbygning i 41cm teglstensmur
Download
pdf
dwg
zip
Se detaljer
Indbygning i formur tegl, bagmur beton
Download
pdf
dwg
zip
Se detaljer
Indbygning i formur tegl, bagmur lægteskelet
Download
pdf
dwg
zip
Se detaljer
Indbygning i teglstensmur, montering med Simpson Strong-Tie
Download
pdf
dwg
zip
Se detaljer
Indbygning i formur tegl, bagmur beton, understøtning med konsolbeslag,
Download
pdf
dwg
zip
Se detaljer
Indbygning i formur tegl, bagmur lægteskelet, understøtning med konsolbeslag,
Download
pdf
dwg
zip
Se detaljer
Indbygning i teglstensmur monteret med Simpson Strong-Tie VIMT trykstænger
Download
pdf
dwg
zip
Se detaljer
Lodret snit, VELFAC 200 ENERGY skydedør, 24mm bundkarm og alu-sålbænk
Download
pdf
dwg
zip
Se detaljer
VELFAC 200 ENERGY skydedør, lodret snit ved 24mm bundkarm
Download
pdf
dwg
zip
Se detaljer
Lodret snit i vindueshul
Download
pdf
dwg
zip
Se detaljer
Vandret snit i murhul
Download
pdf
dwg
zip
Se detaljer
Vandret snit i murhul med Simpson Strong-Tie montagekonsol VIMDK215 og VMT
Download
pdf
dwg
zip
Se detaljer
Fastgørelse i stålvinkel på bagmur
Download
pdf
dwg
zip
Se detaljer
Fastgørelse i K-Mur-28E i bagmur
Download
pdf
dwg
zip
Se detaljer
Vis mere
Indbygning i betonelementer
Indbygget i betonelement
Download
pdf
dwg
zip
Se detaljer
Indbygning i sandwich betonelement, monteret med montagebeslag fra Simpson Strong-Tie
Download
pdf
dwg
zip
Se detaljer
Vis mere
Indbygning i vægge med træbeklædning
Vandret snit i træfacade
Download
pdf
dwg
zip
Se detaljer
Vandret snit i letfacade
Download
pdf
dwg
zip
Se detaljer
Lodret snit i træfacade
Download
pdf
dwg
zip
Se detaljer
Vis mere
Indbygning ved fyldingspartier
VELFAC 200 ENERGY og fyldningsparti
Download
pdf
dwg
zip
Se detaljer
VELFAC 200 ENERGY (115mm karm) og VELFAC 200 facaderamme, DWG
Download
dwg
dwg
zip
Se detaljer
VELFAC 200 ENERGY (140mm karm) og VELFAC 200 facaderamme
Download
dwg
dwg
zip
Se detaljer
Vis mere
Indbygning ved søjler, drager, terrændæk
Indbygning ved søjle, PDF
Download
pdf
dwg
zip
Se detaljer
Lodret snit ved drager
Download
pdf
dwg
zip
Se detaljer
Lodret sammenstilling 20mm fuge afstand & vindafstivning
Download
pdf
dwg
zip
Se detaljer
Lodret sammenstilling 15mm fuge afstand & vindafstivning
Download
pdf
dwg
zip
Se detaljer
Lodret sammenstilling 12mm fuge afstand & vindafstivning eks.1
Download
pdf
dwg
zip
Se detaljer
Lodret sammenstilling 12mm fuge afstand & vindafstivning eks.2
Download
pdf
dwg
zip
Se detaljer
Lodret sammenstilling, etageadskillelsesvandnæse
Download
pdf
dwg
zip
Se detaljer
Udadgående hjørneløsning, cirkulær rør som søjle
Download
pdf
dwg
zip
Se detaljer
Udadgående hjørneløsning ved cirkulær søjle
Download
pdf
dwg
zip
Se detaljer
Vandret snit ved R.H.S søjle
Download
pdf
dwg
zip
Se detaljer
Sammenstilling ved R.H.S søjle
Download
pdf
dwg
zip
Se detaljer
Detalje ved R.H.S søjle
Download
pdf
dwg
zip
Se detaljer
Detalje ved dæk, terrassedør
Download
pdf
dwg
zip
Se detaljer
Detalje ved etagedæk, terrassedør
Download
pdf
dwg
zip
Se detaljer
Detalje ved dæk, VELFAC 200 ENERGY, 24mm bundkarm
Download
pdf
dwg
zip
Se detaljer
Lodret snit ved etagedæk, VELFAC 200 ENERGY skydedør, 24mm bundkarm
Download
pdf
dwg
zip
Se detaljer
Vis mere
Opklodsning og fugning af bundkarme - nogle eksempler
Opklodsning og fugning af bundstykker - eksempler
Download
pdf
dwg
zip
Se detaljer
Opklodsning og fugning af bundkarme - eksempler
Download
pdf
dwg
zip
Se detaljer
Vis mere
Alu-profil til dækning af fugesår
VELFAC 200 ENERGY anvendt til renovering aluafdækning af gammel fugematriale tilsætning for bedre termiske egenskaber
pdf
Se detaljer
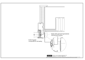
Projekt hvor den gamle fuge er dækket af fugesårsprofilet
jpg
Se detaljer
Vis mere
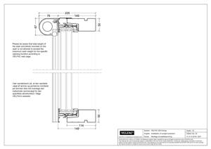
VELFAC 200 ENERGY vindue med eftermonteret mini-screen
VELFAC 200 ENERGY, påmonteret mini screen
png
Se detaljer
VELFAC 200 ENERGY, påmonteret mini screen
Download
pdf
dwg
zip
Se detaljer
Vis mere
Indbygning med fugeprofil
Indbygning af VELFAC 200 ENERGY med fugeprofil
Download
pdf
dwg
zip
Se detaljer
Vis mere