Produktdatabase
Vinduer & terrassedøre
VELFAC 200 ENERGY
VELFAC Ribo træ/alu
VELFAC Ribo træ
VELFAC Classic træ/alu
VELFAC Classic træ
VELFAC Edge
VELFAC In
VELFAC Brandelement
Facadedøre
VELFAC Aluminium door
VELFAC Ribo træ/alu-døre
VELFAC Ribo trædøre
VELFAC Classic træ/alu-døre
VELFAC Classic trædøre
VELFAC branddøre
Download
System-snittegninger
BIM objekter
Indbygningstegninger
Montering og justering
Drift og vedligehold
Brugervejledninger
Ydeevnedeklarationer (DoP)
DGNB-dokumentation
Produktspecifikke EPD'er
Udbudsbeskrivelser
Info-center
Login (For medarbejdere)
Produkt database
Gå til VELFAC.dk
VELFAC Produktdatabase
Download
Indbygningstegninger
VELFAC 200 ENERGY
Download
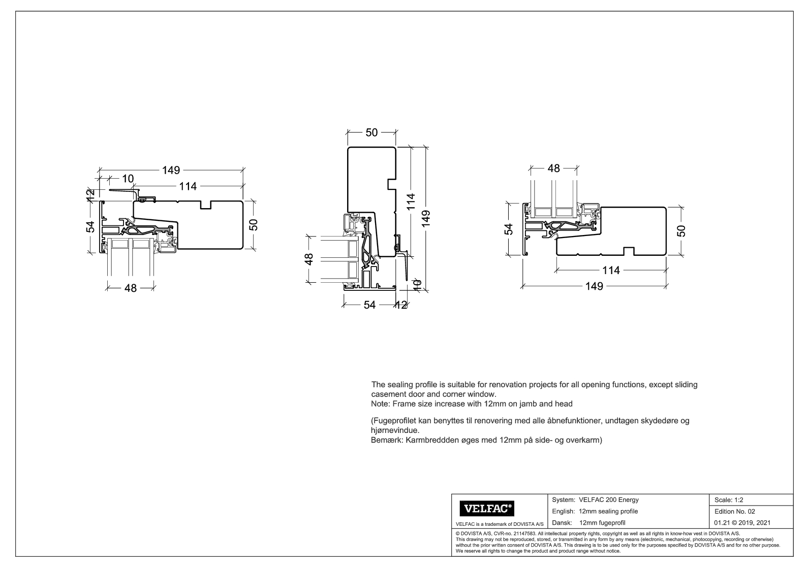
VELFAC 200 ENERGY
Indbygningseksempler VELFAC 200 ENERGY
Her ses forskellige metoder til indbygning af VELFAC 200 ENERGY elementer.
Snittegninger downloades som DWG- og PDF-filer.
Alle tegninger kan frit bruges til projektering med VELFAC vinduer og døre.
Indbygning i teglfacader
Indbygning i betonelementer
Indbygning i vægge med træbeklædning
Indbygning ved fyldingspartier
Indbygning ved søjler, drager, terrændæk
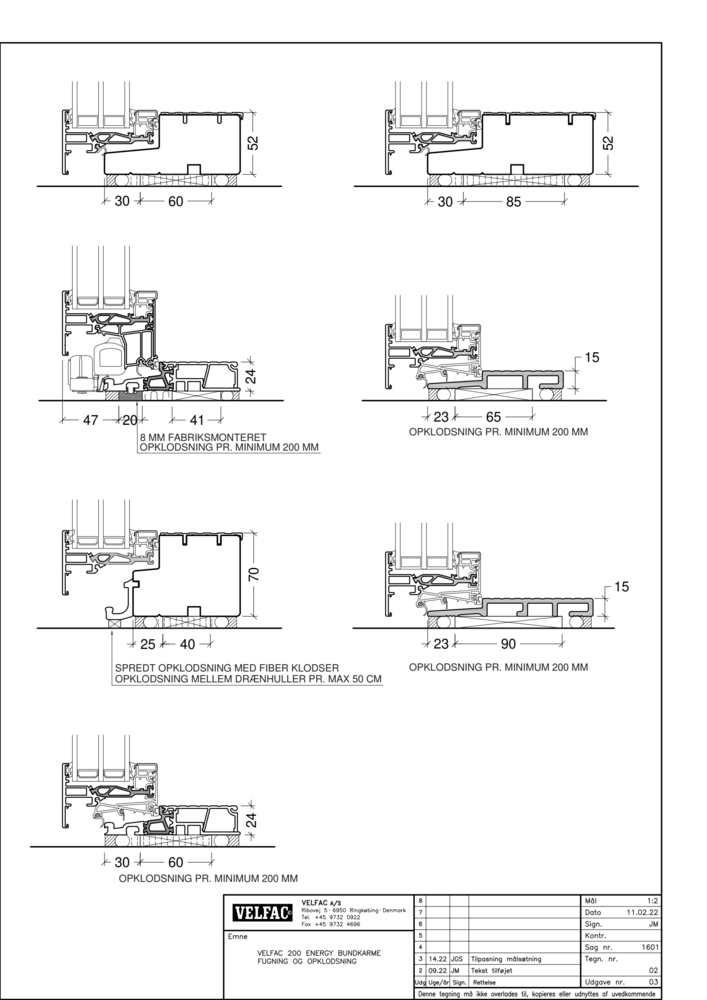
Opklodsning og fugning af bundkarme - nogle eksempler
Alu-profil til dækning af fugesår
VELFAC 200 ENERGY vindue med eftermonteret mini-screen
Indbygning med fugeprofil